Autodesk Revit 2026
- joekeogh0
- Apr 9, 2025
- 3 min read
Updated: May 14, 2025
New features in Autodesk Revit 2026
Each year Revit sets a new standard for BIM excellence, offering powerful advancements that enhance project delivery and performance. The latest evolution has better tools to achieve greater precision, speed, and collaborative control, ensuring you stay ahead in a competitive landscape. See below for the full list of enhancements.
WALLS
New Create by Room Segment allows the creation of finish layers by selecting other walls.

Core Layers are no longer required in Compound Structures and each layer has a priority function to define and improve wall joins where required.

TOPOSURFACE ENHANCEMENTS:

Multiple subdivisions within the same Toposolid and set different types for each subdivision.
Subdivisions can now also be scheduled and edited within Visibility and Graphics.
Toposolid Accuracy - A large criticism of the Toposolid feature was inaccuracy when compared with the
previous Toposurface system. This has been vastly improved to better generate accurate cut & fill volume.
Void Cutting improved.
Copy/Paste Points has been introduced to speed up modelling.
Maximum Toposolid Points increased from 10,000 to 20,000.
VIEW CALLOUTS, ELEVATION/SECTION MARKS AND VIEW REFERENCES:
Instance-based Reference Labels. They still have a type-default, just use the instance parameter to define your own where necessary.

Introduction of Shared Parameters for View markers and references.

Global Setting for Structural Elements to Disable automatic shortening of Steel elements when auto-joining.
SHEETS
Additional parameters available in Schedule Sheet List properties including fields from Global Parameters and titleblocks.
Sheet Collections are now available as a category for Schedules, allowing for quick automation of parameter inputs based on Sheet Collection.
“As Indicated” Scale override parameter for all Titleblocks.

Savable View position to lock in place and repeat saved position throughout the Project with Automated View Placement.

LINK MANAGEMENT
2025.5 saw the overhauled Manage Links interface with Improved visibility and control of linked Models and CAD formats. You can now view imported or linked items in the same dialog.

Coordination Model Visibility & Graphics tab, allowing for greater visual control of categories and the colour of linked elements in views.

More precise IFC positioning.
ACCELERATED REVIT GRAPHICS TECH PREVIEW
Enhances visual performance and responsiveness, reducing lag and improving navigation speed in 3D and 2D views.

RECAP PRO MESH REVIT PLUGIN
ReCap Pro integration allows for import and conversion of large or complex Point-Clouds into Revit. Link a mesh, define parts and convert Mesh geometry to native Revit Families.



INTERFACE CHANGES:
Many modification and placement options moved from Option Bar to Ribbon.
ENHANCED TWINMOTION FAMILY SUBSTITUTION

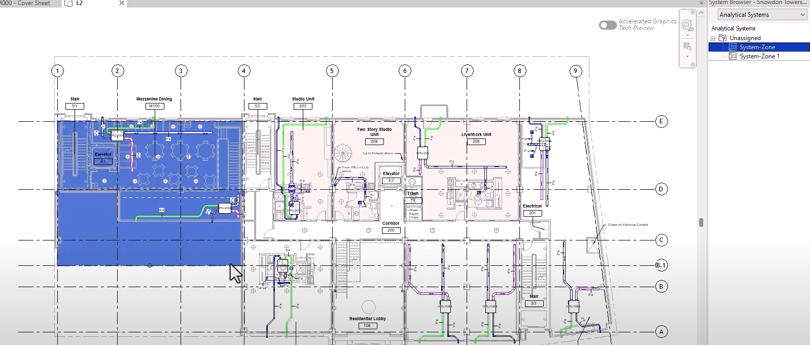
MEP IMPROVEMENTS:
MEP Fabrication load times are now 70% faster and issues with step-downs have been addressed.

MEP Content Editor now permits 3D visuals of connections before loading into the project.

Globalized Electrical conductors to manage circuit wiring requirements and cable configurations.
Enhanced HVAC zoning and analytical model coordination.

MEP IMPROVEMENTS:
Easily model cranked rebar in congested areas to prevent clashes.
With every release, Revit continues to redefine what’s possible in Building Information Modeling, and this year is no exception. The latest version introduces a suite of features designed to streamline workflows, improve coordination, and deliver more accurate results faster than ever before. Whether you’re focused on design, documentation, or data-driven decision-making, these updates are built to support your evolving project needs and keep your teams aligned and productive. If you’re looking to maintain a competitive edge and elevate the quality of your project outcomes, now is the perfect time to explore what’s new. Download the latest version and experience the improvements firsthand — see the full list of enhancements below.











Comments